中古一戸建住宅
「利回り」は、当該不動産の1年間の予定賃料収入の不動産取得対価に対する割合であり、公租公課その他当該物件を維持するために必要な費用の控除前のものです。
また、予定賃料収入が確実に得られる事を保証するものではありません。

機能的で使いやすいシステムキッチン付きなので、お料理を楽しめます。綺麗な洗面台が設置されているので、特に女性からのお問い合わせが多いです。3口コンロが付いているので、3つの料理を同時に進められて時短につながります。周辺環境も充実している中古の戸建て物件です。住みやすい環境が整った足立区で一戸建てを購入するのであれば、豊富な不動産情報を扱う当社のスタッフまでお問い合わせください。

※地図上の物件位置は近隣に物件が所在することを表すものであり、実際の物件所在地とは異なる場合がございます。
03-5284-9601
営業時間:10:00~19:00 / 定休日:水曜日
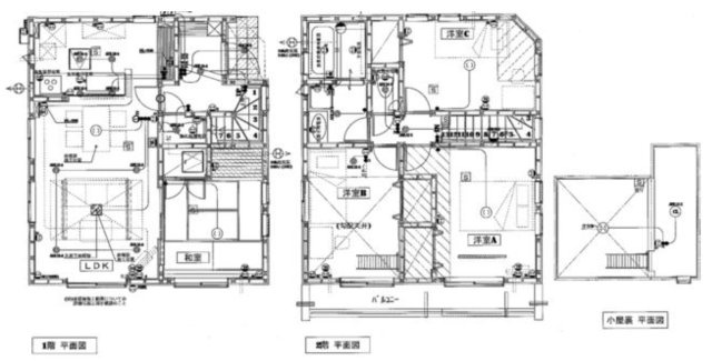
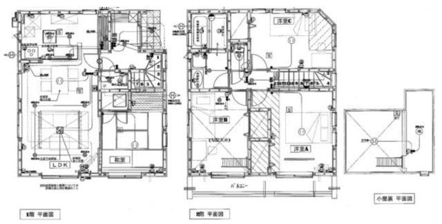
| 所在地 | 東京都足立区入谷1丁目 | ||
|---|---|---|---|
| 交通 |
日暮里舎人ライナー 「舎人」駅
徒歩9分 日暮里舎人ライナー 「舎人公園」駅 徒歩15分 日暮里舎人ライナー 「見沼代親水公園」駅 徒歩20分 |
||
| 価格 | 5,880万円 | ||
| 間取り |
4LDK
LDK 17.0帖 1室 / 和室 6.1帖 1室 / 洋室 6.9帖 1室 / 洋室 6.3帖 1室 / 洋室 6.1帖 1室 / |
||
| 築年月(築年数) | 2018年 1月(築7年) | 主要採光面 | 南東 |
| 建物構造 | 木造 | 階数 | 2階建 |
| 私道負担面積 | セットバック | ||
| 接道状況 | 角地 (北東側6.0m) (南東側4.0m) | ||
| 建ぺい率/容積率 | / | 土地権利 | 所有権 |
| 地目 | 地勢 | ||
| 土地の権利形態 | |||
| 都市計画 | 用途地域 | ||
| その他法令上の制限 | |||
| 国土法届出 | 不要 | 取引態様 | 仲介 |
| 現況 | 居住中 | 引渡し | 相談 |
| リフォーム | |||
| 駐車場 | 空き台数:1台 、 | ||
| 設備条件 | 公共下水 / 公営水道 / 都市ガス / 新婚さん向け / ファミリー向け / 室内洗濯機置場 / フローリング / ロフト付き / バルコニー / ガスコンロ / コンロ2口以上 / システムキッチン / 対面式キッチン / コンロ3口 / バス・トイレ別 / 追焚機能浴室 / 浴室乾燥機 / 洗面台 / トイレ2ヶ所 / ディンプルキー | ||
| その他条件 | |||
| 備考 | 住まい探しで暮らしをもっとスマートに♪私たち、スマートベースにお任せください♪ | ||
| 周辺の学校 | |||
| 物件番号 | 92533011 | ||
| 情報公開日 | 2025年12月8日 | 次回更新予定日 | 2025年12月22日 |
| 取引条件の有効期限 | 2025年12月22日 | ||
| 取扱い会社 |
スマートベース 〒120-0034 東京都足立区千住4丁目9-2 東京都知事(1)第111800号 |
||
03-5284-9601
営業時間:10:00~19:00 / 定休日:水曜日
| 所在地 | 物件の住所を表示。(詳細住所は表示していない場合もある) | ||
|---|---|---|---|
| 交通 | 物件(部屋)の沿線駅・バス停を表示。(複数駅・バス停の利用が可能な場合は最大3件まで) | ||
| 間取り/詳細 | 数字は居室数を表示。LDKはそれぞれ「リビング」「ダイニング」「キッチン」、S(納戸)とは「納戸」「サービスルーム」「マルチルーム」「フリールーム」など建築基準法第28条に適合していないため、居室と認められない納戸その他の部分を表す。 | ||
| 価格 | 販売されている住戸の価格を表示。仲介手数料は含まない。 | ||
| 管理費 | 共同住宅の設備その他共用部分の維持および管理をするために必要な費用を表示。 | ||
| 修繕積立金 | 共用部分の修繕のために積立てる金額を表示。 | ||

【外観】