中古マンション
「利回り」は、当該不動産の1年間の予定賃料収入の不動産取得対価に対する割合であり、公租公課その他当該物件を維持するために必要な費用の控除前のものです。
また、予定賃料収入が確実に得られる事を保証するものではありません。

北綾瀬駅まで徒歩11hん、青い駅まで徒歩12分と好立地!パーキングスペース利用料金は15000円♪浴槽内の湯が冷めたときでも追焚機能付き浴室なので快適です。足立区にあるつくばエクスプレス青井駅周辺で不動産をお探しの方は、当社にお任せ下さい。住まい探しで失敗しないよう、当社がしっかりとサポートいたします。

※地図上の物件位置は近隣に物件が所在することを表すものであり、実際の物件所在地とは異なる場合がございます。
03-5284-9601
営業時間:10:00~19:00 / 定休日:水曜日
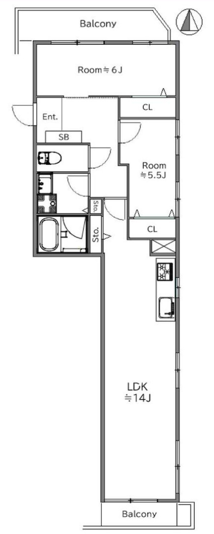
| 所在地 | 東京都足立区綾瀬7丁目 | ||
|---|---|---|---|
| 交通 |
つくばエクスプレス 「青井」駅
徒歩11分 バス5分 綾瀬病院入口下車 徒歩9分 千代田線 「北綾瀬」駅 徒歩11分 バス2分 稲荷神社前(足立区)下車 徒歩5分 常磐緩行線 「綾瀬」駅 徒歩18分 バス13分 綾瀬七丁目下車 徒歩2分 |
||
| 価格 | 2,799万円 | 管理費 | 10,050円 |
| 修繕積立金 | 13,830円 | 修繕積立基金 | |
| 所在階/階数 | 4階 / 6階建 | 築年月(築年数) | 1985年 11月(築40年) |
| 専有面積 | 59.13㎡ | バルコニー面積 | 14.31㎡ |
| 建物構造 | 鉄筋コンクリート(RC) | 主要採光面 | 北 |
| 間取り |
2LDK
LDK 14.0帖 / 洋室 5.5帖 / 洋室 6.0帖 / |
||
| リフォーム | 内装リフォーム:2025年7月 | ||
| 引渡し | 相談 | ||
| 管理 | 管理形態:管理会社に全部委託、 管理員の勤務形態:巡回、 管理会社:クラシテ株式会社 | ||
| 土地権利 | 所有権 | 用途地域 | 第一種住居地域 |
| 土地の権利形態 | |||
| 駐車場 | 空有、月額料金:15,000円(税込) | ||
| 設備条件 | 都市ガス / ペット相談 / ペット飼育可 / リフォーム / リノベーション / 室内洗濯機置場 / フローリング / バルコニー / 2面バルコニー / 照明器具付き / 駐輪場 / バイク置場あり / システムキッチン / バス・トイレ別 / 追焚機能浴室 / 温水洗浄便座 / 独立洗面台 | ||
| その他条件 | ペット可(細則あり) | ||
| 備考 | 住まい探しで暮らしをもっとスマートに♪私たち、スマートベースにお任せください♪ | ||
| 周辺の学校 | |||
| 取引態様 | 仲介 | 物件番号 | 97350035 |
| 情報公開日 | 2026年1月12日 | 次回更新予定日 | 2026年1月26日 |
| 取引条件の有効期限 | 2026年1月26日 | ||
| 取扱い会社 |
スマートベース 〒120-0034 東京都足立区千住4丁目9-2 東京都知事(1)第111800号 |
||
03-5284-9601
営業時間:10:00~19:00 / 定休日:水曜日
| 所在地 | 物件の住所を表示。(詳細住所は表示していない場合もある) | ||
|---|---|---|---|
| 交通 | 物件(部屋)の沿線駅・バス停を表示。(複数駅・バス停の利用が可能な場合は最大3件まで) | ||
| 間取り/詳細 | 数字は居室数を表示。LDKはそれぞれ「リビング」「ダイニング」「キッチン」、S(納戸)とは「納戸」「サービスルーム」「マルチルーム」「フリールーム」など建築基準法第28条に適合していないため、居室と認められない納戸その他の部分を表す。 | ||
| 価格 | 販売されている住戸の価格を表示。仲介手数料は含まない。 | ||
| 管理費 | 共同住宅の設備その他共用部分の維持および管理をするために必要な費用を表示。 | ||
| 修繕積立金 | 共用部分の修繕のために積立てる金額を表示。 | ||

中古マンション
| 価格 | 2,390 万円 | ||
|---|---|---|---|
| 間取り | 2LDK | 築年月(築年数) | 1992年 11月 (築33年) |
| 専有面積 | 65.71㎡ | 階数 | 14階建 |
| 住所 | 東京都足立区西保木間3丁目 | ||
| 交通 |
東武伊勢崎線「谷塚」駅 徒歩16分 東武伊勢崎線「竹ノ塚」駅 徒歩22分 日暮里舎人ライナー「舎人」駅 徒歩43分 |
||
中古マンション
| 価格 | 2,800 万円 | ||
|---|---|---|---|
| 間取り | 2LDK | 築年月(築年数) | 2006年 10月 (築19年) |
| 専有面積 | 60.62㎡ | 階数 | 15階建 |
| 住所 | 東京都足立区鹿浜1丁目 | ||
| 交通 |
南北線「王子神谷」駅 徒歩32分 日暮里舎人ライナー「西新井大師西」駅 徒歩31分 南北線「志茂」駅 徒歩32分 |
||
中古マンション
| 価格 | 2,880 万円 | ||
|---|---|---|---|
| 間取り | 2LDK | 築年月(築年数) | 2008年 1月 (築18年) |
| 専有面積 | 52.34㎡ | 階数 | 4階建 |
| 住所 | 東京都足立区古千谷本町3丁目9-10 | ||
| 交通 |
日暮里舎人ライナー「舎人」駅 徒歩11分 日暮里舎人ライナー「見沼代親水公園」駅 徒歩12分 日暮里舎人ライナー「舎人公園」駅 徒歩24分 |
||
【外観】